Galpão / Loja / Depósito para ALUGAR - R. Pinheiros - 1.490m² - Excelente - PINHEIROS
R$80.000,00
Galpão / Loja / Depósito ALUGA - R Pinheiros - 1.490m² - Excelente - PINHEIROS
Sensacional imóvel comercial na Rua dos Pinheiros, a poucos metros da Av. Brig. faria Lima e Largo da Batata, metrô a 50 metros do local.
Este imóvel possui:
- Pátio para estacionamento e carga e descarga, 500m2 aproximadamente;
- Ar condicionado central.
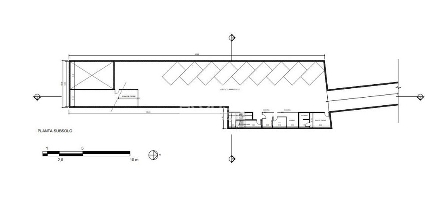
- Garagem sub solo, com duas frentes. aprox. 600m2 Com banheiro, salas e deposito.
- Excelente estado de conservação.
- Imóvel de 1.490 m2, sendo o salão do térreocom 550 m2 aproximadamente;
- Mezanino com cozinha/refeitório. Vestiários salas e banheiros (350m2).
- Área totalmente utilizável para escritório e inúmeras atividades comerciais, como: mercado; depósito logístico ou armazenagem; operação "last mile"; loja, etc.
Marque sua visita!!!!
BAIRRO DE PINHEIROS
Pinheiros é um dos bairros mais vibrantes e desejados de São Paulo, combinando infraestrutura moderna, cultura efervescente e qualidade de vida.
Além de ser um polo econômico e imobiliário em constante valorização, Pinheiros atrai diferentes perfis de moradores, desde jovens profissionais a famílias estabelecidas.
Pinheiros reúne uma verdadeira festa gastronômica com inúmeros restaurantes de culinária regional ou internacional.
Entre os serviços, o bairro não deixa a desejar com supermercados, bancos e lojas disponíveis a poucos passos de qualquer lugar. Sem contar a vasta variedade de transporte público: ônibus, metrô, trem, bicicletas, etc.
Área Útil: 1490 M²
Área Total: 1490 M²
Banheiro(s): 6
Vaga(s): 10
IPTU: * R$13.300,00





